Casale Monferrato, vendesi appartamento di 170 mq con posto auto
Rif.a344 | 170 mq | camere: | bagni: 2 | € 88.000
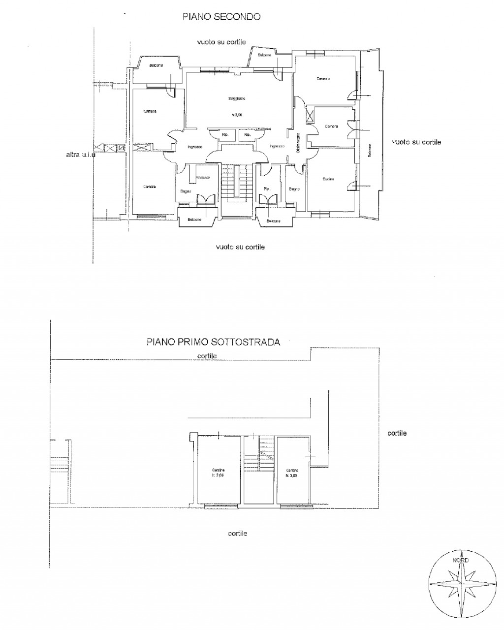
Descrizione
Casale Monferrato, zona Oltreponte e più precisamente in Via Piacibello, in palazzina bene tenuta nelle parti comuni ristrutturata con bonus 110% vendesi, al secondo piano senza ascensore, appartamento in ottime condizioni di circa 170 mq con doppio ingresso e possibilità di frazionarlo in due unità abitative. Attualmente l’immobile è così composto: ingresso, ampio soggiorno, disimpegno, 4 camere da letto, cucina abitabile, locale ad uso lavanderia, due ripostigli, doppi servizi, cinque balconi. Completano la proprietà due cantine al piano seminterrato e due posti auto interno cortile. Serramenti in pvc con doppi vetri e zanzariere. Riscaldamento centralizzato con termovalvole. Richiesta euro 88.000
Dettagli
| Prezzo: | € 88.000 |
| Metri quadri: | 170 mq |
| bagni: | 2 |
| camere: | 4 |
| Classe energetica: |
I.P.E. 79,51 kWh/m2 anno |
| piano numero: | 2 |
| poggioli/balconi: | Più di 3 |
| posto auto: | 2 |
| ripostigli: | 2 |
Ambienti: | |
Comfort: | |
| Comune: | Casale Monferrato |
| Indirizzo: | Via Alfredo Piacibello 4 |
























