Morano sul Po, vendesi villa indipendente di circa 500 mq
Rif.c989 | 511 mq | camere: 5 | bagni: 6 | € 230.000
Descrizione
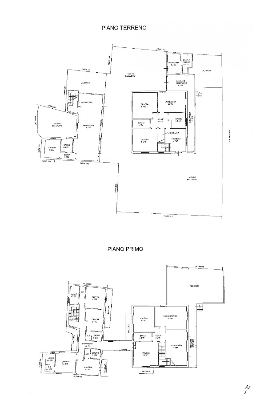
Morano sul Po, vendesi villa completamente indipendente, ben rifinita, di ampia metratura con possibilità di realizzare due o più unità abitative. L'immobile è così composto: al piano terreno, ingresso, studio, due camere da letto, due locali ad uso lavanderia e locale ad uso caldaia; ampia tavernetta con camino, servizio e cantina. Al primo piano, cucina abitabile, grande terrazza, soggiorno, servizio, sei camere da letto ognuna servita dal proprio bagno, disimpegno, due ripostigli e tre balconi. Completa la proprietà cortile e giardino ad uso esclusivo e due box auto di ampie dimensioni.Riscaldamento con caldaia a condensazione a metano e caldaia a pellet. Serramenti i pvc con doppi vetri e zanzariere, e impianto fotovoltaico. Richiesta euro 230.000
Dettagli
| Prezzo: | € 230.000 |
| Metri quadri: | 511 mq |
| bagni: | 7 |
| camere: | 6 |
| Classe energetica: |
I.P.E. 169,31 kWh/m2 anno |
| garage doppio: | 1 |
| poggioli/balconi: | 1 |
| ripostigli: | Più di 2 |
| terrazzi: | 1 |
| totale piani: | 1 |
Ambienti: | |
Comfort: | |
| Comune: | Morano sul Po |
| Indirizzo: | Via Magenta 5 |


















































